Danh mục sản phẩm
MẪU THIẾT KẾ
BÁO GIÁ
Hỗ trợ trực tuyến
thống kê truy cập
Số người truy cập: 0
Hôm nay: 0
Đang online: 0
Tổ hợp phòng xông hơi và bồn Jacuzzi cao cấp anh Đình Anh, Hà Nam
Hiện thực hóa mong muốn xây dựng nhà không chỉ là “nơi để về”, Hanteco đã bắt tay hợp tác với anh Đình Anh, biến không gian sống trở thành nơi chăm sóc sức khỏe, tái tạo năng lượng mỗi ngày. Tổ hợp phòng xông hơi và bồn sục jacuzzi được bố trí, xây dựng khoa học, hiện đại, nâng tầm không gian.
THÔNG TIN DỰ ÁN
- Tên dự án: Tổ hợp phòng xông hơi và bồn jacuzzi cao cấp
- Địa chỉ: Hà Nam
- Hạng mục: Phòng xông khô, phòng xông ướt, bồn jacuzzi nhập khẩu
- Chi phí đầu tư: 325.000.000 VNĐ
NÂNG TẦM KHÔNG GIAN SỐNG
Là hạng mục thư giãn, chăm sóc sức khỏe cho các thành viên trong gia đình nên anh Đình Anh rất chú trọng vào các chi tiết, thiết kế an toàn, tiện lợi và thẩm mỹ. Chính vì vậy, tổ hợp phòng xông hơi, bồn sục jacuzzi được Hanteco bố trí với không gian tiện nghi, hiện đại.

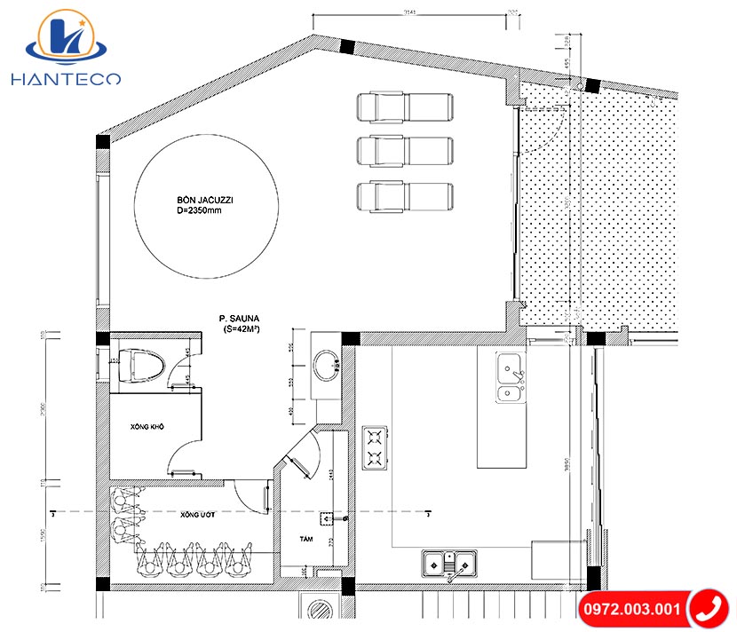
Bản vẽ bố trí không gian 2 phòng xông và bồn jacuzzi
Hanteco đã tư vấn và mang đến cho gia đình anh Đình Anh một lựa chọn hoàn hảo – bồn Jacuzzi nhập khẩu nguyên chiếc, không chỉ tối ưu diện tích mà còn nâng tầm đẳng cấp không gian. Thiết kế tròn tinh tế với đường kính 2.35m tạo nên một “ốc đảo thư giãn” ngay trong nhà, nơi mọi căng thẳng tan biến khi ngâm mình trong làn nước ấm, cảm nhận sự thư giãn trọn vẹn và tận hưởng những khoảnh khắc bình yên tuyệt đối.




Bồn jacuzzi tròn nhập khẩu với thiết kế thẩm mỹ và hiện đại
Bên cạnh đó, hệ thống phòng xông hơi được bố trí hợp lý với hai loại hình: phòng xông khô giúp đào thải độc tố, tăng cường lưu thông máu và phòng xông ướt mang đến hơi nước ẩm, hỗ trợ làm sạch da, cải thiện sức khỏe hô hấp.


Bố trí bồn sục và không gian 2 phòng xông khoa học, tiện ích
Từng chi tiết trong công trình được chăm chút tỉ mỉ, từ chất liệu cao cấp được lựa chọn kỹ lưỡng đến hệ thống thiết bị hiện đại, tất cả đều hài hòa với tổng thể không gian. Mỗi đường nét thiết kế không chỉ đảm bảo tính thẩm mỹ mà còn hướng đến trải nghiệm thư giãn tối ưu, giúp gia đình anh Đình Anh tận hưởng sự tiện nghi và thoải mái ngay tại nhà. Đây không chỉ là nơi thư giãn mà còn là biểu tượng của phong cách sống đẳng cấp.

Phòng xông khô hiện đại, thẩm mỹ và thiết kế tinh tế
Tổ hợp xông hơi và bồn sục jacuzzi tại Hà Nam là minh chứng cho xu hướng đầu tư vào sức khỏe và trải nghiệm ngay tại gia. Đây cũng là lựa chọn lý tưởng cho những ai muốn sở hữu không gian thư giãn chất lượng như resort ngay trong chính ngôi nhà của mình. Quý khách hàng có nhu cầu lắp đặt thi công phòng xông hơi, vui lòng liên hệ hotline Hanteco để được hỗ trợ 24/7.
Hanteco - Khẳng định vị thế dẫn đầu thị trường
BÀI VIẾT LIÊN QUAN
- Nâng tầm thư giãn với phòng xông hơi anh Danh - Bình Dương
- Dự án thiết kế thi công tổng thể Spa mang đẳng cấp thương hiệu
- Dự án phòng xông hơi đẳng cấp tại Venus Yoga & Dance Hải Phòng
- Hanteco đơn vị chuyên thiết kế thi công tổng thể spa chuyên nghiệp
- Bàn giao dự án phòng xông cao cấp Spa Mộc Hương Thảo - Bắc Ninh
- Dự án tổ hợp phòng xông - bồn sục tại Lộc An Beauty & Spa




